La Villa Picasso est un joyau å portée de main Oü chaque détail est méticuleusement choisi pour garantir une expérience de vie de bien-étre et de convivialité. Baignée de lumiére dorée du soleil de Marrakech, cette résidence de luxe abrite un jardin privatif ainsi qu'une piscine. La beauté de cette villa sunit parfaitement avec le cadre verdoyant qui l'entoure, créant une harmonie visuelle et une atmosphére paisible o rant des moments de détente et de quiétude.
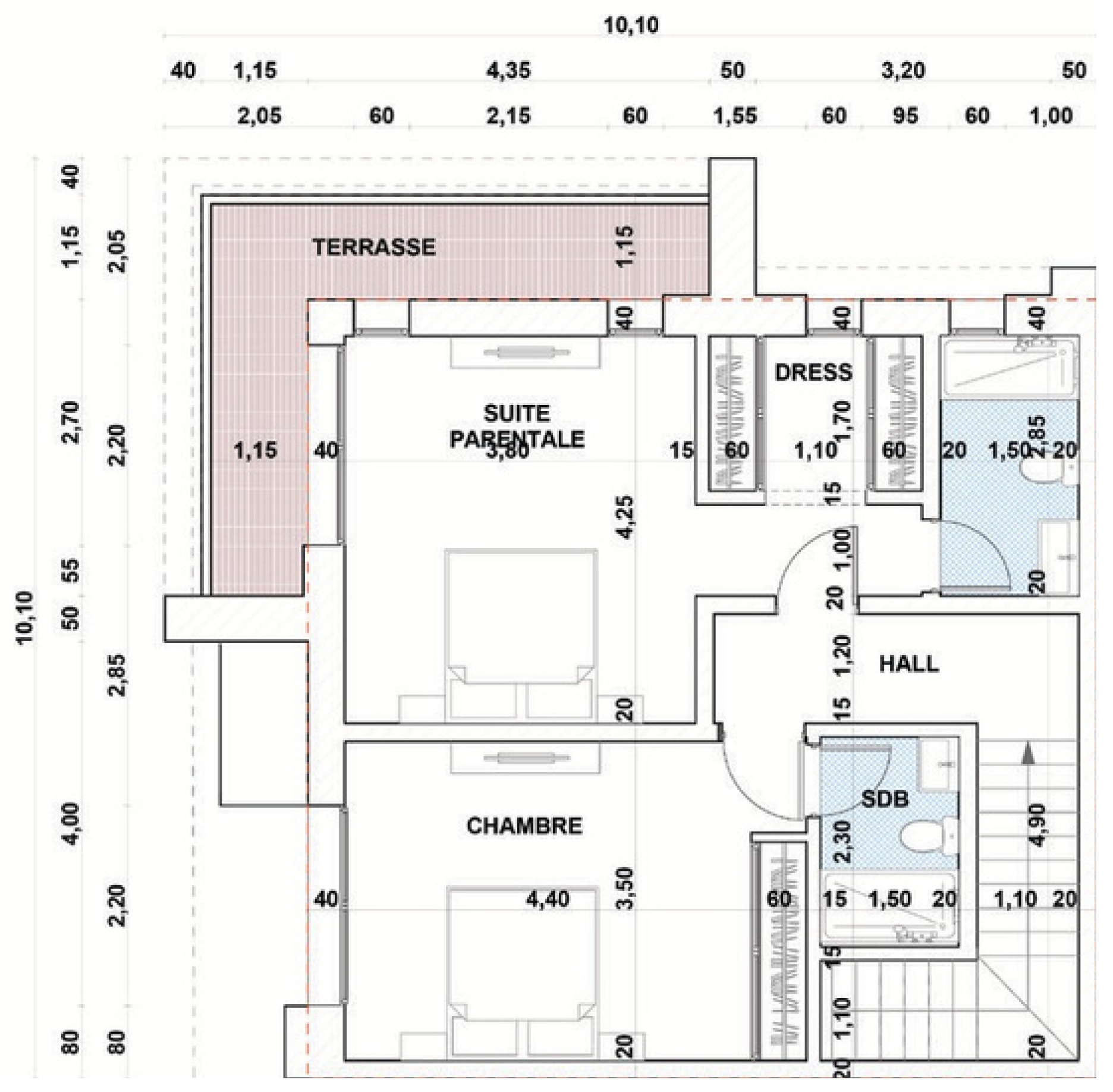
Édi ée sur une parcelle de 210 å 320 m2 avec un jardin et une piscine privés ainsi qu'une surface dédiée la vie intérieure de 180 mm Ia villa Picasso propose un rez-de-chaussée composé d'un spacieux salon et d'une cuisine.


Le projet vise à maximiser la connexion avec la beauté des verts luxuriants des jardins et la beauté de Marrakech.
Parlez-nous de vos rêves de voyage pour cette année, et nous vous aiderons à les réaliser.